Tiny House petite maison de 22m² sur une remorque

Tiny House petite maison de 22m² sur une remorque

Le prix initial était : 17,750.00€.Le prix actuel est : 8,665.00€.

UGS : 69524

Description

Tiny House petite maison de 22m² sur une remorque

Il s’agit de la dernière version de notre gamme, à l’intérieur comme à l’extérieur, tout en conservant les hauts plafonds, beaucoup de lumière et le plan d’étage ouvert pour lesquels nous sommes connus dans l’industrie.

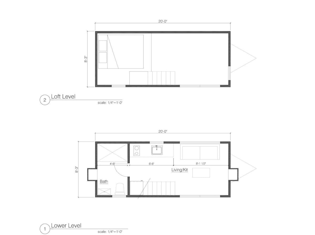
Le salon dispose d’un haut plafond avec beaucoup de verre pour profiter de la lumière naturelle et des vues extérieures. Le niveau principal mesure 8′-6″ x 20′-0″, ce qui en fait 18m² d’espace habitable. Le loft est accessible par un escalier avec des espaces de rangement.

Elle dispose d’une salle de bain complète avec une grande douche que vous ne trouverez pas dans la plupart des petites maisons. Cuisine spacieuse avec un plan de travail de 6′-6″ et de la place pour un grand réfrigérateur de 24″ de large x 60″ de haut.

Cette unité est livrée clé en main avec tous les luminaires et appareils électroménagers inclus.

Sol
Sous-plancher T&G 3/4”
Isolation en mousse pulvérisée à cellules fermées
Revêtement de sol en planches de vinyle sur pare-vapeur

Murs
Murs à ossature bois 2×4
Revêtement T-111 3/4” avec planche Hardie
Pare-vapeur pour envelopper la maison
Isolation en mousse pulvérisée
Finition pour cloison sèche

Plafond
Chevrons de toit 2×6
Revêtement en contreplaqué
Barrière anti-fuite pour toiture à peler et coller
Toiture en métal Galvalume
Isolation en mousse pulvérisée
Plafond en bois à clin

Fenêtres et portes
Grande porte d’entrée en vinyle de 6′ x 6′-8″ avec verre antichoc
Fenêtres en vinyle tout verre antichoc

Électrique
Service 30 ampères 120 V
Plafonniers LED 4″
Climatiseur Pioneer 12 000 BTU avec chauffage

Plomberie
Alimentation en eau froide et chaude
Conduites d’eaux usées en PVC avec raccordement de 3 pouces
Chauffe-eau au propane

Cuisine
Armoires gris shaker
Dosseret en carrelage
Comptoir en quartz
Table de cuisson à 2 brûleurs au propane en acier inoxydable
Évier de cuisine à cuve unique en acier inoxydable
Robinet en acier inoxydable avec douchette rétractable
Réfrigérateur en acier inoxydable

Bain
Toilettes à chasse d’eau
Meuble sous-évier
Douche carrelée en céramique
Sol en carreaux de galets

Avis (0)
0 reviews
0
0
0
0
0

Il n’y a pas encore d’avis.

Soyez le premier à laisser votre avis sur “Tiny House petite maison de 22m² sur une remorque”

Votre adresse e-mail ne sera pas publiée. Les champs obligatoires sont indiqués avec *

You have to be logged in to be able to add photos to your review.

Commentaires des clients

0 reviews
0
0
0
0
0

Il n’y a pas encore d’avis.

Soyez le premier à laisser votre avis sur “Tiny House petite maison de 22m² sur une remorque”

Votre adresse e-mail ne sera pas publiée. Les champs obligatoires sont indiqués avec *

You have to be logged in to be able to add photos to your review.